Salut, je ne sais pas comment le Wébasto doit agir sur la soufflerie de chauffage. Mais le principe de commande c'est :
Le fil violet liseré vert est un + 12V après contact.
La mise en route du moteur de la soufflerie se fait se fait soit en grande vitesse en commutant directement à la masse le fil vert liseré gris ou bien en petite vitesse en commutant le fil vert liseré jaune qui a en série une résistance de 10 Ohms, qui absorbe une partie de la tension en limitant le courant dans le moteur qui du coup tourne moins vite.
Donc ton levier de commande à en faite 3 positions:
La première arrêt donc pas de retour à la masse. A
La deuxième petite vitesse, retour à la masse à travers une résistance de 10 Ohms qui se trouve dans le bloc de soufflerie.
La troisième Grande vitesse directement à la masse.
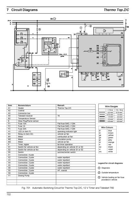
1) La résistance de 10 Ohms fixée sur la petite plaque riveté marqué LHD là où rentre les 3 fils.
2) On voit le petit connecteur noir qui va au moteur de soufflerie, le connecteur gris reliè au faisceau vers l'habitacle, se divisant vers le fusible N°5 de 15 A pour le fil violet liseré vert, les deux fils autres allant au commutateur de soufflerie. On voit le fil vert liseré jaune seul d'un coté et les deux autres ensembles.
3) Un petit schéma car le schéma d'origine ne mentionne pas le connecteur noir et il y a une erreur sur la couleur du fil Vert liseré violet qui n'est pas mentionné mais confondu avec le violet liseré vert

.
4) Commande dans l'habitacle. Tu retrouve les deux couleurs, vert liseré jaune en première position et le vert liseré gris en deuxième, ainsi qu'une belle masse noire relier par une vis au tablier au niveau du moteur d'essuie glace, car l'ensemble de la commande est monté sur du plastique.
NB: La commande c'est celle d'un 2.5D RHD, mais les couleurs des fils et le principe sont les mêmes qu'un 300 ou qu'un Td5.
Plusieurs cas de "coupage" possibles selon le type de commande du Wébasto:
1ier cas. Si il commute un +12V : Il faut couper le fil violet liseré vert et intercaler la commande du Wébasto, en espérant que le Wébasto en position repos te maintien la liaison lorsqu'il n'est pas activé, pour que tu puisses conserver la commande d'origine. Mais il faudra penser à laisser le commutateur en position petite ou grande vitesse si on veut qu’il souffle.
2ième cas. S’il commute une masse: Il faut couper l'un des deux fils vert liseré jaune ou gris selon la vitesse souhaité. Si on dort dans le land on choisira la petite vitesse pour le bruit. Dans ce cas le fil vert liseré jaune.
3ième cas. Le Wébasto commute un +12V et une masse. Ce qui le rendrait indépendant de la clef de contact et de la position du levier de commande de soufflerie. Dans ce cas il y aurait 4 fils en provenances du Wébasto . 2 à intercaler sur le fil violet/vert et 2 pour la masse fil vert/gris pour la grande vitesse par exemple.
Sinon, mets en ligne un lien ou une photo du schéma de ta doc si tu ne t’en sors pas.
A+
