Changement chassis 110 300 TDI par un chassis 110 TD5
Règles du forum
En naviguant sur le site http://www.landroverfaq.com vous reconnaissez avoir lu ses Conditions d’Utilisation, vous déclarez les comprendre et vous acceptez d’y être lié de manière inconditionnelle. Si tel n'est pas le cas, merci de quitter immédiatement ce site.
Vous pouvez joindre autant d'images que nécessaire à vos messages A LA CONDITION EXPRESSE d'utiliser l'hébergement fourni par le site.
L'administrateur effacera systématiquement tout message contenant des photos hébergées chez Imageschack, Casimage, Wistiti ou tout autre hébergeur tiers sans sommation ni justification.
En naviguant sur le site http://www.landroverfaq.com vous reconnaissez avoir lu ses Conditions d’Utilisation, vous déclarez les comprendre et vous acceptez d’y être lié de manière inconditionnelle. Si tel n'est pas le cas, merci de quitter immédiatement ce site.
Vous pouvez joindre autant d'images que nécessaire à vos messages A LA CONDITION EXPRESSE d'utiliser l'hébergement fourni par le site.
L'administrateur effacera systématiquement tout message contenant des photos hébergées chez Imageschack, Casimage, Wistiti ou tout autre hébergeur tiers sans sommation ni justification.
Changement chassis 110 300 TDI par un chassis 110 TD5
Bonjour à tous.
Besoin d'aide pour un changement de chassis.
J'ai cherché sur le forum mais rien trouvé me concernant.
Ca concerne un Defender 110 en 300 TDI dont le chassis est pourri ; je pense avoir trouvé un chassis de remplacement mais c'est un chassis de TD5.
La manip est elle faisable et si oui, quel sont les points qui pourraient poser problème : supports moteur, emplacement réservoir, etc...
Besoin d'aide pour un changement de chassis.
J'ai cherché sur le forum mais rien trouvé me concernant.
Ca concerne un Defender 110 en 300 TDI dont le chassis est pourri ; je pense avoir trouvé un chassis de remplacement mais c'est un chassis de TD5.
La manip est elle faisable et si oui, quel sont les points qui pourraient poser problème : supports moteur, emplacement réservoir, etc...
Carpe diem...
Re: Changement chassis 110 300 TDI par un chassis 110 TD5
Mis à part les fixations moteur, je ne pense pas qu'il y aie d'autres soucis. Il faut les récupérer sur l'ancien pour les souder sur le nouveau.
" Quand le sage montre la lune; l'idiot regarde son doigt "
- LØLØ
- Modérateur
- Messages : 6209
- Enregistré le : 30/07/2006 15:41
- Localisation : guainville (28 )
- Contact :
Re: Changement chassis 110 300 TDI par un chassis 110 TD5
Salut,
Il faut absolument que le vendeur du châssis de TD5 te fournisse une facture, afin que tu puisses justifier de son origine.
Sans facture pas d'achat, a moins que tu puisses refrapper tes numéros ou ressouder ton bout de châssis avec tes numéros sur celui du TD5, c'est faisable également et a mon sens dans ce cas une bonne solution.
Tu peux avoir également les deux numéros, mais étant donné qu'il y a un changement de motorisation, en cas de gros pépin l'assurance peut sauter sur l'occasion pour tirer sa révérence et te laisser dans la mouise, mais pour les affaires de police pas de problème dés lors que l'origine des deux numéros est justifier.
Vois ces thèmes : Changement Traverse Arrière ou châssis. et Chassis galvanisé provenance Angleterre
A+
Il faut absolument que le vendeur du châssis de TD5 te fournisse une facture, afin que tu puisses justifier de son origine.
Sans facture pas d'achat, a moins que tu puisses refrapper tes numéros ou ressouder ton bout de châssis avec tes numéros sur celui du TD5, c'est faisable également et a mon sens dans ce cas une bonne solution.
Tu peux avoir également les deux numéros, mais étant donné qu'il y a un changement de motorisation, en cas de gros pépin l'assurance peut sauter sur l'occasion pour tirer sa révérence et te laisser dans la mouise, mais pour les affaires de police pas de problème dés lors que l'origine des deux numéros est justifier.
Vois ces thèmes : Changement Traverse Arrière ou châssis. et Chassis galvanisé provenance Angleterre
A+
2 solutions: la bonne et l'Anglaise
LUCAS: Il n'y a pas de contact où il le faut et il y en a un où il ne faut pas
On ne peut aller loin en amitié, si on n'est pas disposé à se pardonner les uns aux autres les petits défauts.
www.eternal-vehicles.fr
LUCAS: Il n'y a pas de contact où il le faut et il y en a un où il ne faut pas
On ne peut aller loin en amitié, si on n'est pas disposé à se pardonner les uns aux autres les petits défauts.
www.eternal-vehicles.fr
Re: Changement chassis 110 300 TDI par un chassis 110 TD5
Ok merci Lølø. Bon dimanche.
Carpe diem...
-
antoineolivier
- Habitué
- Messages : 18
- Enregistré le : 26/09/2014 9:37
- Localisation : Les Touches 44390
Re: Changement chassis 110 300 TDI par un chassis 110 TD5
salut à tous,torero a écrit :Mis à part les fixations moteur, je ne pense pas qu'il y aie d'autres soucis. Il faut les récupérer sur l'ancien pour les souder sur le nouveau.
merci pour ces informations (il s'agit de mon def malade). J'ai trouvé un ou des châssis de TD5 qui sont propres.
l'idée de les récupérer, souder des supports moteur de 300 dessus, faire la découpe/soudage du numéro de châssis et ensuite envoyer le tout à la galva...
ainsi récupérer un châssis niquel pour 1/3 du prix d'un galva chez richardchassis.
une autre question, qu'en est il des réservoirs...??? pour moi ceux du td5 ne sont pas identiques à ceux du 300...???
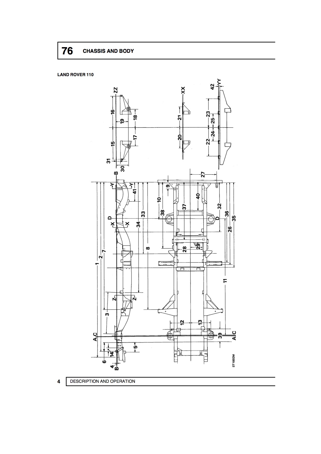
Enfin serait-il possible de récupérer un plan précis, avec les côtes précises pour ressouder les fixations moteur sur le 300 tdi...???
Merci.
Kenavo, merci
Olivier
Olivier
Re: Changement chassis 110 300 TDI par un chassis 110 TD5
Tu mesureras les côtes quand tu auras tombé le moteur du 300, non?
Pour le réservoir, effectivement il y a une différence. Celui du Td5 est simplement posé sur une tôle de blindage alors que celui du 300 est boulonné au châssis. Il faudra certainement souder des supports sur le cassis pour le monter.
Pour le réservoir, effectivement il y a une différence. Celui du Td5 est simplement posé sur une tôle de blindage alors que celui du 300 est boulonné au châssis. Il faudra certainement souder des supports sur le cassis pour le monter.
" Quand le sage montre la lune; l'idiot regarde son doigt "
-
antoineolivier
- Habitué
- Messages : 18
- Enregistré le : 26/09/2014 9:37
- Localisation : Les Touches 44390
Re: Changement chassis 110 300 TDI par un chassis 110 TD5
salut,torero a écrit :Tu mesureras les côtes quand tu auras tombé le moteur du 300, non?
Pour le réservoir, effectivement il y a une différence. Celui du Td5 est simplement posé sur une tôle de blindage alors que celui du 300 est boulonné au châssis. Il faudra certainement souder des supports sur le cassis pour le monter.
non je ne pourrais pas... l'idée est de réceptionner le châssis, souder tout ce qui va bien sur le nouveau, envoyer le tout en galva.
ensuite je prends la route, descends chez octobre rouge et là changement du châssis...
Kenavo, merci
Olivier
Olivier
-
walidbk
- Habitué
- Messages : 392
- Enregistré le : 15/01/2009 9:50
- Localisation : 36°50'01.11''N 10°09'10.66''E
Re: Changement chassis 110 300 TDI par un chassis 110 TD5
ehhh bein ! j'ai toujours pensé qu'entre 300 et TD5 c'etait du plug and play .... heureusement que la faq est là pour corriger mes idées
A+
A+
Re: Changement chassis 110 300 TDI par un chassis 110 TD5
Ok. Là tu trouveras peut être ce que tu cherches...
Defender 110 AM '96.
Defender 110 AM '96.
" Quand le sage montre la lune; l'idiot regarde son doigt "
- LØLØ
- Modérateur
- Messages : 6209
- Enregistré le : 30/07/2006 15:41
- Localisation : guainville (28 )
- Contact :
Re: Changement chassis 110 300 TDI par un chassis 110 TD5
Salut,torero a écrit :Tu mesureras les côtes quand tu auras tombé le moteur du 300, non?
Pour le réservoir, effectivement il y a une différence.
Une alternative à la mesure, est de fixer les supports moteur sur les silenblocs, de fixer la boîte provisoirement au moteur avec deux ou trois boulons, puis régler la hauteur sur un support, le pointer, puis régler la hauteur de le deuxième, le pointer aussi ( impossible de caler les deux, sans en souder un au préalable car le moteur suspendu à sa chèvre, aura toujours un déséquilibre ) Enfin ressortir le moteur pour souder correctement les deux supports . Cela sous entend que la boite soit montée elle aussi. On est sur dans ce cas de ne pas se tromper dans la hauteur, ni dans l'écart par rapport à la boîte et ni dans l'angle ou le plat par rapport aux silenblocs moteur. Car souvent avec les supports moteur de récupération, coupés à la disqueuse, on se retrouve plus ou moins d'équerre et le trou se trouve plus ou moins éloigné, donc autant que le moteur lui même serve de gabarit, c'est plus sûr.
Sur la partie avant il me semble que c'est pareil, c'est sur le système de fixation sur la traverse arrière que cela change.Celui du Td5 est simplement posé sur une tôle de blindage alors que celui du 300 est boulonné au châssis. Il faudra certainement souder des supports sur le cassis pour le monter.
Mais je pense que tu aurais un avantage à installer un réservoir plastique comme s'était le cas également sur les derniers 300. Plus de problème de corosion entre le blindage et le réservoir maladie qui guette tous les Land avec des réservoirs métallique, ainsi que plus de problème de fuite au joint de la jauge.
A+
2 solutions: la bonne et l'Anglaise
LUCAS: Il n'y a pas de contact où il le faut et il y en a un où il ne faut pas
On ne peut aller loin en amitié, si on n'est pas disposé à se pardonner les uns aux autres les petits défauts.
www.eternal-vehicles.fr
LUCAS: Il n'y a pas de contact où il le faut et il y en a un où il ne faut pas
On ne peut aller loin en amitié, si on n'est pas disposé à se pardonner les uns aux autres les petits défauts.
www.eternal-vehicles.fr
- nanard833
- Habitué
- Messages : 3989
- Enregistré le : 10/10/2009 20:18
- Localisation : disco 300TDI 431000 bornes
Re: Changement chassis 110 300 TDI par un chassis 110 TD5
Très bonne idée LØLØLØLØ a écrit :Salut,Une alternative à la mesure, est de fixer les supports moteur sur les silenblocs, de fixer la boîte provisoirement au moteur avec deux ou trois boulons, puis régler la hauteur sur un support, le pointer, puis régler la hauteur de le deuxième, le pointer aussi ( impossible de caler les deux, sans en souder un au préalable car le moteur suspendu à sa chèvre, aura toujours un déséquilibre ) Enfin ressortir le moteur pour souder correctement les deux supports . Cela sous entend que la boite soit montée elle aussi. On est sur dans ce cas de ne pas se tromper dans la hauteur, ni dans l'écart par rapport à la boîte et ni dans l'angle ou le plat par rapport aux silenblocs moteur. Car souvent avec les supports moteur de récupération, coupés à la disqueuse, on se retrouve plus ou moins d'équerre et le trou se trouve plus ou moins éloigné, donc autant que le moteur lui même serve de gabarit, c'est plus sûr.
j'ai regardé sous le disco, les supports de la BT sont fixés sur la traverse. Est ce pareil sur le def ?
La traverse est-elle la même ?
Si les trous du châssis sont au même endroit, ça veut dire que la BT est dans la même position par rapport au châssis sur le def td5 et le def 300 tdi (pour conserver la longueur des arbres de transmission ?), la position du moteur étant réglée par la longueur de la cloche d'embrayage différente entre le 300 et le td5.
En tout cas, les supports de BT sont identiques sur les defs 300 tdi, les defs td5, et les discos 300 tdi (équipés de la R380 bien entendu)
Il semblerait que sur les defs, les pattes de fixation (brackets) qui reçoivent les supports moteurs sont boulonnées au châssis donc pas difficile à récupérer par contre, il y a peut être des entretoises dans l'épaisseur du châssis pour le serrage des boulons ? ou sont ce des goujons soudés au chassis ?
Contrairement au disco ou elles sont soudés
A+torero a écrit :Tu mesureras les côtes quand tu auras tombé le moteur du 300, non?
Pour le réservoir, effectivement il y a une différence. Celui du Td5 est simplement posé sur une tôle de blindage alors que celui du 300 est boulonné au châssis. Il faudra certainement souder des supports sur le cassis pour le monter.
Gratter la botte ne soulage guère quand ça démange à l'intérieur (proverbe chinois)
-
antoineolivier
- Habitué
- Messages : 18
- Enregistré le : 26/09/2014 9:37
- Localisation : Les Touches 44390
Re: Changement chassis 110 300 TDI par un chassis 110 TD5
bonjour à tous,
merci, c'est un bon début, je pense pouvoir rassembler pas mal d'éléments...
je pense que je vais commander des supports moteurs neufs, qui seront assemblés avant galva...
à voir si je garde ou non la monture (en attente des assurances, nouvelle expertise jeudi après midi).
Merci.
olivier
merci, c'est un bon début, je pense pouvoir rassembler pas mal d'éléments...
je pense que je vais commander des supports moteurs neufs, qui seront assemblés avant galva...
à voir si je garde ou non la monture (en attente des assurances, nouvelle expertise jeudi après midi).
Merci.
olivier
Kenavo, merci
Olivier
Olivier
-
antoineolivier
- Habitué
- Messages : 18
- Enregistré le : 26/09/2014 9:37
- Localisation : Les Touches 44390
Re: Changement chassis 110 300 TDI par un chassis 110 TD5
bonjour à tous,
finalement le defender sera repris samedi par son ancien propriétaire.
affaire qui se termine pas trop mal pour moi... ouf...
du coup j'ai trouvé un petit 2,25atmo pas trop mal et pas trop cher

finalement le defender sera repris samedi par son ancien propriétaire.
affaire qui se termine pas trop mal pour moi... ouf...
du coup j'ai trouvé un petit 2,25atmo pas trop mal et pas trop cher
Kenavo, merci
Olivier
Olivier
- LØLØ
- Modérateur
- Messages : 6209
- Enregistré le : 30/07/2006 15:41
- Localisation : guainville (28 )
- Contact :
Re: Changement chassis 110 300 TDI par un chassis 110 TD5
Les tout premiers 110 dans la première année de production en 1983. Ils deviennent rare, perso j'en ai connu deux qui sont parties à la découpe.antoineolivier a écrit :
du coup j'ai trouvé un petit 2,25atmo pas trop mal et pas trop cher![]()
Très bon choix pépère, vitesse de croisière 80 à 90 km/h. Le seul moteur, qui n'arrive pas a péter les boites de vitesse land.
Du couple à bas régime, très agréable en courte en tout terrain.
A+
2 solutions: la bonne et l'Anglaise
LUCAS: Il n'y a pas de contact où il le faut et il y en a un où il ne faut pas
On ne peut aller loin en amitié, si on n'est pas disposé à se pardonner les uns aux autres les petits défauts.
www.eternal-vehicles.fr
LUCAS: Il n'y a pas de contact où il le faut et il y en a un où il ne faut pas
On ne peut aller loin en amitié, si on n'est pas disposé à se pardonner les uns aux autres les petits défauts.
www.eternal-vehicles.fr
-
antoineolivier
- Habitué
- Messages : 18
- Enregistré le : 26/09/2014 9:37
- Localisation : Les Touches 44390
Re: Changement chassis 110 300 TDI par un chassis 110 TD5
tu as tout à fait raison, première sortie de fab en Octobre 1983. Le mien est du 27 décembre 1983.LØLØ a écrit :Les tout premiers 110 dans la première année de production en 1983. Ils deviennent rare, perso j'en ai connu deux qui sont parties à la découpe.antoineolivier a écrit :
du coup j'ai trouvé un petit 2,25atmo pas trop mal et pas trop cher![]()
![]()
Très bon choix pépère, vitesse de croisière 80 à 90 km/h. Le seul moteur, qui n'arrive pas a péter les boites de vitesse land.![]()
![]()
Du couple à bas régime, très agréable en courte en tout terrain.
A+
2286 cm3 à 5 paliers de 66 CV
ça fait pas beaucoup et ça va me changer du 300, mais je suis confiant, content...
on revient aux bases de l'histoire
Kenavo, merci
Olivier
Olivier
- LØLØ
- Modérateur
- Messages : 6209
- Enregistré le : 30/07/2006 15:41
- Localisation : guainville (28 )
- Contact :
Re: Changement chassis 110 300 TDI par un chassis 110 TD5
Que nenni!, le premier 110 a été présenté au 53ème salon de Genève en 1983, qui s'est tenu du 10 au 20 mars 1983.antoineolivier a écrit : , première sortie de fab en Octobre 1983. Le mien est du 27 décembre 1983.
2286 cm3 à 5 paliers de 66 CV
vois ce lien: https://www.gumtree.com/p/land-rover/19 ... 1168874528 A+
2 solutions: la bonne et l'Anglaise
LUCAS: Il n'y a pas de contact où il le faut et il y en a un où il ne faut pas
On ne peut aller loin en amitié, si on n'est pas disposé à se pardonner les uns aux autres les petits défauts.
www.eternal-vehicles.fr
LUCAS: Il n'y a pas de contact où il le faut et il y en a un où il ne faut pas
On ne peut aller loin en amitié, si on n'est pas disposé à se pardonner les uns aux autres les petits défauts.
www.eternal-vehicles.fr
-
antoineolivier
- Habitué
- Messages : 18
- Enregistré le : 26/09/2014 9:37
- Localisation : Les Touches 44390
Re: Changement chassis 110 300 TDI par un chassis 110 TD5
eh M...E, une fois de plus je m'incline....LØLØ a écrit :Que nenni!, le premier 110 a été présenté au 53ème salon de Genève en 1983, qui s'est tenu du 10 au 20 mars 1983.antoineolivier a écrit : , première sortie de fab en Octobre 1983. Le mien est du 27 décembre 1983.
2286 cm3 à 5 paliers de 66 CV![]()
![]()
vois ce lien: https://www.gumtree.com/p/land-rover/19 ... 1168874528 A+
Merci pour l'info... dans la prolongation, tu aurais les docs techniques du bestios (RTA, autre???)
merci... +++
Kenavo, merci
Olivier
Olivier
- LØLØ
- Modérateur
- Messages : 6209
- Enregistré le : 30/07/2006 15:41
- Localisation : guainville (28 )
- Contact :
Re: Changement chassis 110 300 TDI par un chassis 110 TD5
Salut,antoineolivier a écrit : Merci pour l'info... dans la prolongation, tu aurais les docs techniques du bestios (RTA, autre???)
Oui, j'ai tout, part catalogue ou catalogue de pièces détachées et revue technique d'origine constructeur en français, acheté à l'époque a prix d'or. Mais voilà, c'est du papier. Doc peut-être que tu peux certainement trouver en téléchargement sur le net. Ici tu n'auras que des petits extraits par ci par là, en fonction des problèmes traités, souvent avec photos, mais c'est tout.
Tiens, lis ça: Documentation en téléchargement? Ou ça doc technique def 200tdi en français dont le lien vers: Moteur d'essuie glace de def 83/98.
En conclusion, fais attention aux règles de copyright, quand tu évoques les documentations techniques
Merci
A+
2 solutions: la bonne et l'Anglaise
LUCAS: Il n'y a pas de contact où il le faut et il y en a un où il ne faut pas
On ne peut aller loin en amitié, si on n'est pas disposé à se pardonner les uns aux autres les petits défauts.
www.eternal-vehicles.fr
LUCAS: Il n'y a pas de contact où il le faut et il y en a un où il ne faut pas
On ne peut aller loin en amitié, si on n'est pas disposé à se pardonner les uns aux autres les petits défauts.
www.eternal-vehicles.fr
-
antoineolivier
- Habitué
- Messages : 18
- Enregistré le : 26/09/2014 9:37
- Localisation : Les Touches 44390
Re: Changement chassis 110 300 TDI par un chassis 110 TD5
je n'exclue pas la vente/achat/troc...LØLØ a écrit :Salut,antoineolivier a écrit : Merci pour l'info... dans la prolongation, tu aurais les docs techniques du bestios (RTA, autre???)
Oui, j'ai tout, part catalogue ou catalogue de pièces détachées et revue technique d'origine constructeur en français, acheté à l'époque a prix d'or. Mais voilà, c'est du papier. Doc peut-être que tu peux certainement trouver en téléchargement sur le net. Ici tu n'auras que des petits extraits par ci par là, en fonction des problèmes traités, souvent avec photos, mais c'est tout.
Tiens, lis ça: Documentation en téléchargement? Ou ça doc technique def 200tdi en français dont le lien vers: Moteur d'essuie glace de def 83/98.
En conclusion, fais attention aux règles de copyright, quand tu évoques les documentations techniques![]()
Merci
A+
Kenavo, merci
Olivier
Olivier