Fuite de courant identifiée, comment traiter ?

Bidouillages électriques, codes d'erreur ECU...

Modérateurs : The Pater, LØLØ

Règles du forum
En naviguant sur le site http://www.landroverfaq.com vous reconnaissez avoir lu ses Conditions d’Utilisation, vous déclarez les comprendre et vous acceptez d’y être lié de manière inconditionnelle. Si tel n'est pas le cas, merci de quitter immédiatement ce site.

Vous pouvez joindre autant d'images que nécessaire à vos messages A LA CONDITION EXPRESSE d'utiliser l'hébergement fourni par le site.

L'administrateur effacera systématiquement tout message contenant des photos hébergées chez Imageschack, Casimage, Wistiti ou tout autre hébergeur tiers sans sommation ni justification.
Répondre
Avatar du membre
Bayou
Habitué
Messages : 28
Enregistré le : 15/12/2023 15:15

Fuite de courant identifiée, comment traiter ?

Message non lu par Bayou »

Bonjour les amis,

Sur mon vieux disco j'ai pu, après avoir racheté pour rien une batterie, me rendre compte que j'avais quelques fuites de courant...
A l'aide d'un multimètre j'ai identifié les 3 (!) circuits en causes ( merci pour le post sur le forum qui m'a permis déjà d'en arriver là) :
Sat 1, fusible 1, 15A : bruiteur alarme, alarme (m'en fout de celui là) - perte de 0.015 A
Main box, fusible 12, 10A : diode alarme, montre, radio, plafonniers, feux ar de chargement, remorque - perte de 0.015 A
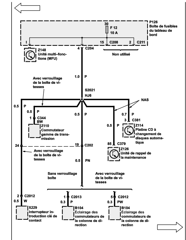
Sat 2, fusible 6, 20A page 435 du manuel électricité du disco : unité multifonction, commutateur de boite de vitesse, com gamme de transmission, inter clé de contact inséré, éclairage commutateur colonne de direction - perte de 0.09 A
Capture d'écran 2024-03-03 122549.png
et le module qui à mon avis est le plus plausible d'etre en cause (je n'ai pas encore réussi à mettre la main dessus physiquement), je pense qu'il faut que je démonte la boite de fusibles, il doit être derrière...
Z148.png
Et maintenant je fais quoi ? vu que c'est impossible de ne pas remettre ces fusibles, je vais installer sous peu un coupe batterie dans la baie moteur, le plus chiant à l'usage mais le plus simple à l'installation mais j'aimerais bien essayer de traiter tout ou partie de ces fuites ... c'est quoi un problème de masse ? de fil + ?


PS : et si je met un coupe circuit dans l'habitacle, j'ai 2x 3m de câble a passer pour une batterie de 70 Ah / 640A, je passe du 25 mm² ou du 35 mm² (pas du 50 quand même?)

Merci pour vos éclairages :)
Deux Volvo et un Disco pour un peu plus de 1 Mio de km ...
Disco 1 de 1997, 300 TDI Aigle 346000 km visible ici : viewtopic.php?f=36&t=8968
Avatar du membre
LØLØ
Modérateur
Messages : 6210
Enregistré le : 30/07/2006 15:41
Localisation : guainville (28 )
Contact :

Re: Fuite de courant identifiée, comment traiter ?

Message non lu par LØLØ »

Salut,
Les deux premières consommations sont normales, c’est l’horloge et la veille de sauvegarde de l’autoradio. La troisième dois correspondre à la veille de l’alarme et de l’ouverture centralisée des portes. Un total des consommations en veille de 0,12 A soit 2,88 À par jour donc en gros en un mois ta batterie est vide.
Je ne connais pas bien les Disco mais es-tu sur qu’il n’y a pas une petite lumière quelques part qui resterait allumée genre éclairage comodo ou un petit relais avec une électronique dedans genre centrale clignotant temporisation… enlève tous ceux qui dépendent du fusible 10 et voit si il y a une influence sur les 0,09A.
Pour le coupe batterie plus le fil est gros mieux c’est. On prévoit en gros 5A par mm2 donc 50 cela me semble bien sachant qu’un démarreur consomme 300 À sur un moteur froid certes pendant pas très longtemps et un léger échauffement du fil est toléré.
Sinon le coupe circuit tu peux le mettre au niveau du boîtier de fusibles du compartiment moteur dans ce cas un 35 mm suffirait.
A+
2 solutions: la bonne et l'Anglaise
LUCAS: Il n'y a pas de contact où il le faut et il y en a un où il ne faut pas
On ne peut aller loin en amitié, si on n'est pas disposé à se pardonner les uns aux autres les petits défauts.
www.eternal-vehicles.fr
Avatar du membre
Bayou
Habitué
Messages : 28
Enregistré le : 15/12/2023 15:15

Re: Fuite de courant identifiée, comment traiter ?

Message non lu par Bayou »

Merci pour ce retour, je vais tester ça (l'influence du fusible 10) et dans tous les cas je vais installer un coupe batterie ...
Deux Volvo et un Disco pour un peu plus de 1 Mio de km ...
Disco 1 de 1997, 300 TDI Aigle 346000 km visible ici : viewtopic.php?f=36&t=8968
Lbarbar
Habitué
Messages : 138
Enregistré le : 04/08/2021 19:52

Re: Fuite de courant identifiée, comment traiter ?

Message non lu par Lbarbar »

Salut,
Ca répond pas vraiment à la question mais pour tout mes tracteurs et mon def, systématiquement, je débranche la masse de la batterie après utilisation.
Pour les autos, dans la famille, à part les 2 récentes, c'est dès que l'on sait que l'on ne vas pas s'en servir pendant plus d'une semaine, surtout par temps froid.
Les alarmes consomment, les fuites de courant sont très fréquentes.
Depuis, plus de soucis.
Selon la configuration du véhicule et l'accessibilité à la batterie, on s'adapte: cosse batterie rapide, petite clé de 10 à coté de la batterie. Coupe batterie pour la remorque benne, ou même tout simplement cosse déconnectée et reconnectée sans serrage mais avec une bonne pression, la cosse étant conique.
Avatar du membre
LandLover110
Habitué
Messages : 213
Enregistré le : 18/02/2011 18:27
Localisation : Amiens

Re: Fuite de courant identifiée, comment traiter ?

Message non lu par LandLover110 »

Bonjour à tous,

Ayant eu longtemps un souci de fuite de courant (voir "Problèmes électriques suite inversion batterie Defender Td5" viewtopic.php?f=21&t=6244 ....), j'ai installé une cosse de batterie à serrage rapide sur la masse, trouvée chez N....to :
2 cosses de batterie à serrage rapide.jpg
Lorsque mon Defender est dans le garage, il me suffit de le débrancher pour conserver toute l'énergie ! C'est un coupe batterie à moindre coût !
Batterie du Defender avec cosse négative à serrage rapide.png
Attention, cette batterie est un modèle avec + à droite : sur les Defender, Land Rover installe d'origine des batteries avec + à gauche : j'en sais quelque chose, mon erreur a été de ne pas en tenir compte en rebranchant ma batterie (et les câbles sont assez long pour faire l'inversion de polarité).
Batterie type Land Rover avec + à gauche.png
Donc, pour éviter toute méprise, je recommande fortement de couvrir le câble + d'un adhésif rouge sur toute sa longueur !!!

Ps : une batterie avec + à gauche est moins chère qu'une batterie avec + à droite, car plus répandue .... et vous pouvez augmenter sa capacité de stockage sans débourser davantage !
Avatar du membre
Bayou
Habitué
Messages : 28
Enregistré le : 15/12/2023 15:15

Re: Fuite de courant identifiée, comment traiter ?

Message non lu par Bayou »

Merci, ca fait effectivement plusieurs mois que j'ai mis un coupe batterie sur la batterie (quasi identique au tiens LandLover110 mais à vis) et depuis plus de soucis... je voulais en mettre un dans l'habitacle mais ca faisait tirer un immense cable et ca revenait bien plus cher pour pas grand chose ...
Deux Volvo et un Disco pour un peu plus de 1 Mio de km ...
Disco 1 de 1997, 300 TDI Aigle 346000 km visible ici : viewtopic.php?f=36&t=8968
Répondre

Retourner vers « Electricité • Electronique »